物件概要
所在:新潟県佐渡市加茂歌代
地目:宅地+畑(非農地証明取得予定)+山林+雑種地2筆
現況:建物あり 古家付き 室内詳細不明です
地積:5筆合計 1495.10㎡
宅地が一番広く、711.10㎡あります。
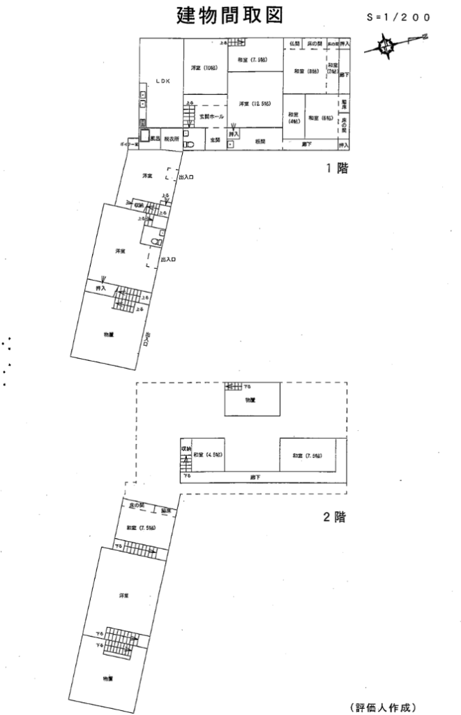
建物:登記簿謄本上の情報と、課税明細上の情報が異なります。
状況:お譲り先募集中
取引態様:代理
引渡し日:相談
住所
現地見学の際にご案内します。
建物一覧
木造・居宅(農家住宅)1階:125.61㎡ 合計:175.86㎡
木造・居宅 1階:26.44㎡ 合計:26.44㎡
木造・土蔵 8.72㎡
木造・土蔵 14.38㎡
木造・土蔵 1階:20.23㎡ 合計:40.46㎡
木造・土蔵 6.57㎡
木造・物置 12.23㎡
木造・納屋 1階:69.42㎡ 合計:138.84㎡
取引金額
150万円 (売買に係る登記費用等の負担は買主様にてお願いできればと思います)
※価格相談可能です。ご希望額をお知らせください。
取引条件
現況有姿+契約不適合責任免責
※所有者が現地の状況を詳細に把握できていないため
固定経費(令和7年度)/土地建物あわせた金額です
固定資産税:確認中
固定資産評価額:¥5,212,646
管理費:特に管理はしていません。
見学方法
事前承認制
※本人確認書類の提出等をお願いしております。
物件調査
現地確認及び購入前の法令調査など必要な調査を十分に行っていただける方にお譲りしたいと考えています。
これまでの経緯と今の状況
相続財産清算人として取り扱いを担当している土地建物ですが、
今後の活用予定も無く、どなたかお手入れしながら大切にお使いいただける方へお譲りしたいです。
課税明細上、母屋は昭和11年建築となっています。
建物や柱が現況の耐震基準とかけ離れている可能性が高いです。
その後、昭和42年に増築されているようです。
母屋の他には倉庫等があり、周辺は竹藪の他、雑草が茂っています。
宅地と隣り合う雑種地は四角形に近い形をしていて、接道があり、車で現地まで行けます。
雑種地を主に駐車スペースとして使っていたようで、車が数台は停められるのではないかと思います。
ただし、しばらく草刈りなどのお手入れをしていないため、こちらもすでに草が茂っている可能性があります。
お家は加茂湖の近くで、両津港佐渡汽船ターミナルから車で約5分、1.8㎞程度の場所にあります。
抵当権がついているのですが、抵当権者には連絡がとれており、
買主さんが決まりましたら抵当権の抹消には柔軟に対応してもらえる予定です。
現地にはまだ行けておらず、室内の様子もよく分かりません。
令和3年の調査では多数の残置物があるとのことですが、基本的にはあるがままの状態でお譲りさせていただきたいと考えております。
お仏壇や美術品もまだ手付かずで残っているようです。
山林はおおよその位置を特定できましたが、Googleマップで見ると一帯が緑地化した山深いエリアのようです。
公図を見ると一応接道があるようですが、この道路は車が通れるのかわかりません。
畑は農業委員会へ問い合わせ中で、2025年11月上旬に回答をもらえることになっています。
145㎡とあまり大きくはない畑のため、もしかすると農家さんではなくとも、自家消費用で3条申請が通る可能性があります。
宅地と隣り合っていない雑種地は接道がなく、お隣さんの土地の間にぽつんと存在しています。
こちらはお隣さんに受け取ってもらえないか相談しようと思っています。
ショッピングプラザ キング 佐渡サンモールタウン店から徒歩数分の場所にある土地です。
お家からは車で4分ほど、約1.5㎞です。
なるべく早く引き継いで管理活用してくださる方と出会えたらと思っています。
譲渡決定後に速やかに手続きをしてくださる方を優先的に交渉させていただきます。
物件のイマイチなところ
境界が不明確、長期未使用、修繕が必要、リフォーム必須、草木の管理が大変だと思います。
以上をご承知おきの上、こちらの土地とお家を引き取ってくださる方を募集します。よろしくお願いいたします。
写真




申込みフォーム
フォーム送信後にご案内メールがとどきます。

